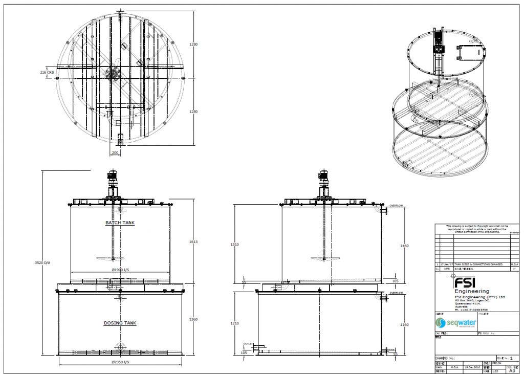
FSI Engineering can design, structurally certify and fabricate Storage Tanks, Mixing Tanks, Dosing Tanks, Batching Tanks and Maturation Tanks.
Our team specialises in the manufacture of custom tanks in any capacity, height or diameter required. If requested we provide Australian Standard access stairs, handrails and platforms that are critical for your staff to be able to access and provide maintenance to the mixing equipment on larger mixing tanks.
FSI is able to design the mixing tank for the product as well as specifying and supplying the mixer.
FSI can fabricate Storage Tanks, Mixing Tanks, Dosing Tanks, Batching Tanks and Maturation Tanks in:
- Mild Steel.
- Stainless Steel 304.
- Stainless Steel 316.
- Aluminium.
- High Density Poly Ethylene (HDPE / PE100).




